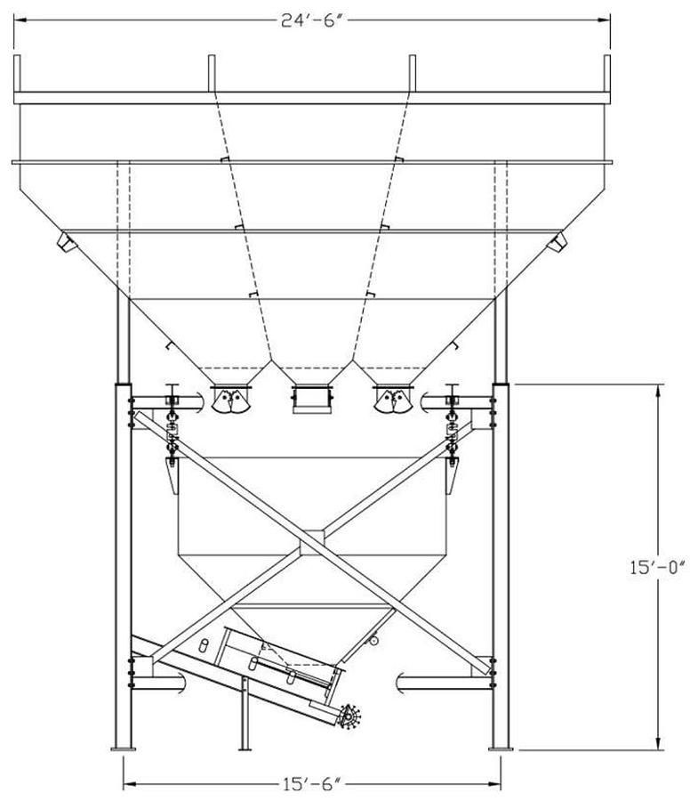
Aggregate Batchers

Aggregate Bins

Aggregate Loading Hoppers

Belgrade Steel Tank

Cement Weigh Batcher

Subscribe to our newsletter